Historie
Fotogalerie
Lage / Anfahrt
Grundrisse
Lagepläne
Bestuhlungs-pläne
Technik
Pläne
Bilder
Die Wappenhalle
Pläne & techn. Daten
Download
Kontakt / Impressum
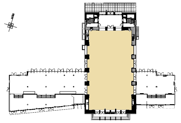
Grundrisse der Wappenhalle
Wappenhalle 700qm
Foyer groß 500qm
Garten / Atrium 2500qm
Tiefgarage 544 Plätze
Copyright © 2004 Wappenhalle GmbH. Alle Rechte vorbehalten.