Historie
Fotogalerie
Lage / Anfahrt
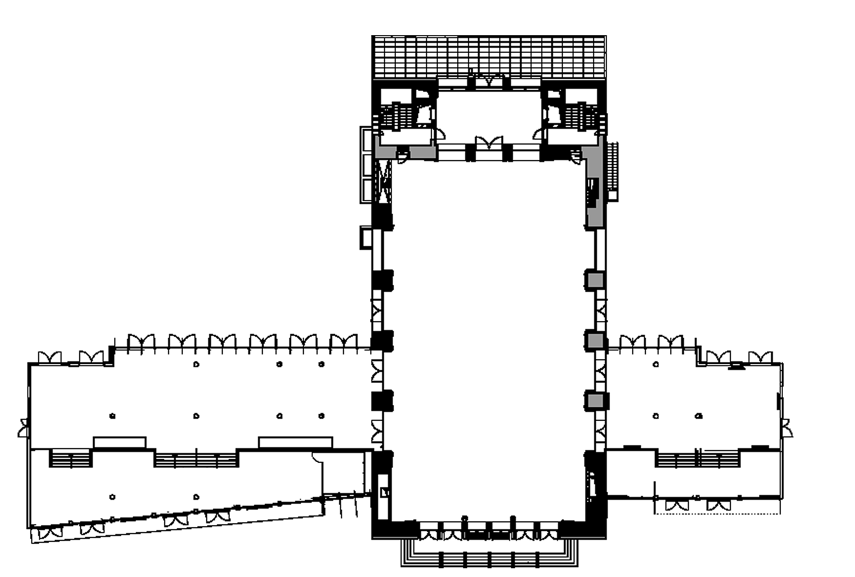
Grundrisse
Lagepläne
Bestuhlungs-pläne
Technik
Pläne
Bilder
Die Wappenhalle
Pläne & techn. Daten
Download
Kontakt / Impressum
Download Pläne
Blankoplan
Typ: gif
Größe: 62kb
Download
Copyright © 2004 Wappenhalle GmbH. Alle Rechte vorbehalten.